Terrenos / Lotes
Exclusividade na Ilha do Frade
Bem-vindo a uma das oportunidades mais raras e sofisticadas do mercado imobiliário capixaba.
Apresentamos quatro terrenos exclusivos disponíveis para venda na Ilha do Frade, uma das localizações mais nobres e desejadas de Vitória/ES.
Com total exclusividade na divulgação desses imóveis, oferecemos aos nossos clientes um atendimento diferenciado, garantindo privacidade e toda assessoria necessária para uma aquisição segura e personalizada.
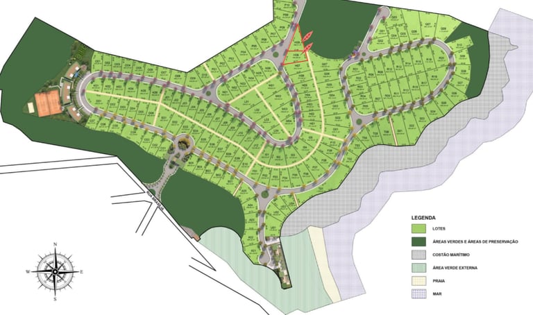
No mapa ao lado, você pode identificar exatamente a localização dos quatro terrenos disponíveis, seguidos de imagens e informações detalhadas de cada um.




Terreno 1 - Área total 865,50m²
Cod: PD5-001 Valor: R$ 7.000.000,00
Localização: Rua Lenita Monteiro Cruz, aforado, e com toda documentação em dia, plano e pronto para construir. A aprovação já foi garantida pela Prefeitura, e você ainda conta com um projeto arquitetônico assinado pelo renomado Diocélio, um dos maiores nomes da arquitetura capixaba, já incluso no valor.




Terreno 2 - Área total 980m²
Cod: PD5-002 Valor: R$ 8.500.000,00
Localização: Rua Carlos Hely, aforado, e com toda documentação 100% regularizada e aforada, pronto para receber o projeto da sua casa dos sonhos ou um investimento de altíssimo padrão. Topografia perfeita para construir em rua sem saída, tranquila e segura.
Terreno 3 - Área total 968m² (Lote 1)
Cod: PD5-003 Valor: R$ 9.530.000,00
Localização: Av. Des. Alvaro Cabral
Terreno 4 - Área total 968m² (Lote 2)
Cod: PD5-004 Valor: R$ 8.720.000,00
Localização: Rua João Vieira Simões
Ambos com toda documentação 100% regularizada e aforada, podendo ser vendidos juntos ou separados, topografia perfeita para construir.


Parque da Areia Preta - Centro
Terreno - Área total 340m²
Cod: PD4-006 Valor: R$ 2.500.000,00
Localização: Rua Zuleima Fortes Farias esquina com Rua Maria Silva, no centro de Guarapari, bairro Parque da Areia Preta, uma localização estratégica, a poucas quadras da praia das Castanheiras.
Documentação 100% regularizada, pronto para receber seu próximo grande projeto, uma área que une potencial, valorização e exclusividade.
Residencial Enseada Praia Grande
Terreno c/área total 300m², loteamento Residencial Enseada Praia Grande, Praia Grande, Fundão/ES.
Cod: PD1-017 Valor: R$ 210.000,00
Localização: Rua Itaoca, Lote Nº 22, loteamento Enseada da Praia Grande, Fundão/ES, A 46KM (1h) de Vitória.
Loteamento com toda infraestrutura pronta, energia, água, esgoto, pavimentação e iluminação pública. Já com algumas construções residenciais em andamento e outras já prontas e habitadas, a topografia plana favorece qualquer tipo de projeto. Documentação e impostos rigorosamente em dia.


2 Terrenos - Área total 1.185,88m²
Cod: PD4-009 Unid. H-09 598,51m², Valor R$ 1.735.679,00
Cod: PD4-010 Unid. H-08 587,37m², Valor R$ 1.703.373,00
Loteamento fechado de alto padrão, com:
✔️ Piscinas, spa e sauna
✔️ Espaços gourmet e salão de festas
✔️ Quadras de esportes e academia
✔️ Área infantil completa
✔️ Natureza preservada e segurança
Viva a exclusividade de um dos empreendimentos mais sofisticados do Espírito Santo.
Vitória/ES
Guarapari/ES
Fundão/ES
Reserva da Praia - Praia do Morro
Terrenos - Área total 1000m² à 3000m²
Cod: PD2-001 Valor: À partir de R$ 600.000,00
Localização: Fazenda Barão do Império, rod. José Sette, km 29, Barra do Mangaraí, na deslumbrante região serrana do Espírito Santo, pertinho de Santa Leopoldina.
Mais que um empreendimento, o Fazenda Barão do Império é um conceito agrogastronômico único no Brasil. Imagine ter à sua porta uma fazenda exclusiva, produzindo mel puro, peixes frescos, hortifrútis orgânicos, leite e laticínios artesanais, e até queijos especiais! Teremos nossa própria cervejaria, um restaurante de alta gastronomia, um clube vibrante e uma praça de esportes completa.
Santa Leopoldina/ES
Fazenda Barão do Império, Barra do Mangaraí - ÚLTIMAS UNIDADES






Casas & Apartamentos
Vitória/ES
Jardim Camburi


Casa Triplex 3 Quartos (suíte) - 117m² - Condomínio fechado
Cod: PD4-012 Valor: R$ 1.080.000,00
Localização: Condomínio Village Jardim Camburi, Rua Lumberto Maciel de Azevedo, Jardim Camburi, Vitória/ES, próximo ao supermercado Carone, escolas, farmácias e toda conveniência que o bairro oferece.
Uma casa triplex moderna, espaçosa, cheia de conforto, praticidade e garagem. No térreo, você encontra uma sala elegante e ventilada, cozinha espaçosa, com armários planejados e acabamento impecável, lavabo, área com churrasqueira e lavanderia. No 2º piso, 2 quartos amplos, 1 c/sacada de frente e 1 banheiro social moderno. No 3º piso, a suíte master c/toda a privacidade que você merece. O condomínio conta com piscina, salão de festas e espaço gourmet, garantindo lazer e segurança para toda a família.


Jardim da Penha


Apartamento 2 Quartos (suíte) - 63m² - Vista livre, sol da manhã
Cod: PD2-013 Valor: R$ 580.000,00
Localização: No coração de Jardim da Penha, Ed. San Diego com localização estratégica, total privacidade e toda conveniência que o bairro oferece.
No segundo andar, este excelente apartamento de 2 quartos. A sala é ampla, bem iluminada pelo sol da manhã e perfeita para dois ambientes. A cozinha já vem com armários planejados, integrada à lavanderia e ao lavabo de serviço. Os quartos são espaçosos e contam com marcenaria completa, aproveitando cada metro quadrado. Banheiro social impecável e lavabo funcional para o seu conforto.
Ventilação excelente e aquela luz natural que faz toda a diferença no dia a dia.
E um grande diferencial: vaga de garagem solta e totalmente coberta!
Serra/ES


Campinho da Serra II
Apartamento 2 Quartos - Vila Serrana (MRV)
Cod: PD1-001 Valor à Partir de: R$ 260.000,00
Localização: Av. Mestre Álvaro, 195, seu novo apartamento de 2 quartos com opções de varanda e área privativa. Uma área de lazer que te convida a viver dias mais iluminados aproveitando as piscinas, playground, salão de festas e muito mais!
Contamos com a parceria sólida da Caixa Econômica Federal no Minha Casa, Minha Vida, o que descomplica a sua vida e agiliza todo o trâmite burocrático.
Porto Canoa


Apartamento 2 Quartos - Vila dos Lagos (MRV)
Cod: PD1-004 Valor à Partir de: R$ 260.000,00
Localização: Av. Brasília, 1014, apartamentos de 2 quartos com/sem varanda, em um condomínio planejado para quem busca conforto, segurança e qualidade de vida. Destaque para preparação para ar-condicionado, acabamento com piso cerâmico, bancadas em granito e tudo o que você precisa para morar bem desde o primeiro dia.
Área de lazer completa, com piscinas, salão de festas, espaço gourmet, playground, pet place, redário, miniquadra de basquete e muito mais!
Financiamento em até 420 meses e subsídio de até R$ 75 mil (Minha Casa, Minha Vida)


Apartamento 2 Quartos - Parkside Residence (MRV)
Cod: PD2-003 Valor à Partir de: R$ 474.000,00
Localização: Rua Anchieta,131, o apartamento dos sonhos, com plantas maiores, cada unidade com 2 quartos, 1 suíte e varanda gourmet com churrasqueira. Opção no térreo com uma área privativa com mais espaço e iluminação natural. Seu conforto é prioridade: piso laminado nos quartos, porcelanato nas demais áreas, bancadas em granito e janelas venezianas que garantem a privacidade.
Localizado em Valparaíso a 1 minuto do Parque da Cidade e a poucos minutos de shoppings e supermercados.
Santa Luzia
Ultimas Unidades
Morada de Laranjeiras
Santa Luzia


Apartamento 102-BL-2 Quartos - Vila Manguinhos - Morada de Laranjeiras
Cod: PD1-015 Valor à Partir de: R$ 470.000,00
Localização: Rua dos Rouxinóis, 363, Morada de Laranjeiras, Apartamento 102, Bloco 2, com 2 quartos, 42m² de área útil e com um quintal privativo de 49m².
O Vila Manguinhos, um verdadeiro clube residencial, moderno, seguro e cercado por conveniência: escolas, comércios, serviços e acesso rápido às principais vias da região e todo pensado para o seu estilo de vida: Piscinas adulto e infantil, Quadras poliesportivas, Academia equipada, Sauna, Salão de festas e de jogos, Playground e várias churrasqueiras para momentos inesquecíveis com a família e os amigos.


Apartamento 2 Quartos - Giardino Florença (MRV) - Santa Luzia
Cod: PD1-014 Valor à Partir de: R$ 349.000,00
Localização: Av. Anchieta, 355, Santa Luzia, em frente ao Parque da Cidade. Seu novo apartamento de 2 quartos com opções de suíte e área privativa, plantas bem distribuídas e acabamentos de qualidade.
💎Além disso, você terá à disposição mais de 15 opções de lazer, como piscinas adulto e infantil, salão de festas, espaço gourmet, quadra de areia, miniquadra, playground, pet place, academia ao ar livre, espaço piquenique e muito mais.
LANÇAMENTO


Santa Luzia
Casa Duplex, 3 Quartos (suíte), Condomínio Aldeia de Marabás – Santa Luzia - Serra
Cod: PD4-011 Valor: R$ 1.300.000,00
Localização: Av. Norte Sul, Santa Luzia, próximo ao Parque da Cidade, Serra/ES, com área total de 154,36 m2.
Térreo: Sala, Banheiro, Quarto multiuso (escritório), Cozinha, área de serviço, área gourmet (churrasqueira), área privativa (quintal) e Garagem para 2 carros;
Piso superior: 1 Suíte Master, 1 quarto, Banheiro social e hall;
Condomínio: lazer completo com piscinas, sauna, quadras, campo de futebol Society, salões de festas e jogos, além de uma área gourmet com churrasqueira.


Bairro de Fátima
Apartamentos 2/3 Quartos (Suíte) - Cond. Morada Vitória - Bairro de Fátima
Cod: PD2-006 Valor à Partir de: R$ 596.000,00
Localização: Rua Henrique Mendonça Martins Rato, 195, Bairro de Fátima, Serra/ES. Desfrute da tranquilidade e da conveniência de Jardim Camburi, a apenas 300 metros. More ao lado de tudo: Shopping Norte Sul, Colégio Salesiano, praias, supermercados e farmácias. Menos trânsito, mais qualidade de vida!
Apartamentos inteligentes com projetos feitos para seu conforto. Opções de 2 e 3 quartos com suíte, Acabamentos de alto padrão: Piso em Porcelanato Retificado e bancadas em granito, Diferenciais que facilitam: Varandas elegantes ou a exclusividade do seu Garden Privativo no térreo.
O Morada Vitória é um verdadeiro clube com lazer completo e mobiliado, com piscinas infantil e adulto, Espaço Gourmet, Churrasqueira e Salão de Festas Climatizados e muito mais. Venha conferir! Agende uma visita.
Costa Bela


Casa Duplex 3 Quartos - 220m² construído em terreno c/360m² - Costa Bela
Cod: PD1-016 Valor (negociável): R$ 460.000,00
Localização: Rua dos Azulões, bairro Costa Bela, Serra/ES. Desfrute da tranquilidade de um bairro com guarita e vigilância 24 horas, com um mercadinho completo, padaria, uma praça com quadra poliesportiva, campo de futebol, pista de skate, aparelhos para exercícios ao ar livre, e o melhor tudo isso, com a tranquilidade e segurança que só os condomínios fechados oferecem.
Casa duplex, em terreno (escriturado) de 360m², portão eletrônico, vagas coberta para 3 carros e muito espaço para lazer. No térreo 110m²: Varanda, Sala, Sala de TV, banheiro social, cozinha e área de serviço. No 2º piso 110m²: Sala intima, 3 quartos, banheiro social e varanda.


Balneário Carapebus
Casas Duplex 3 Qts, quintal privativo, Condomínio Carapebus, Balneário Carapebus, Serra/ES
Cod: PD2-008 Valor à Partir de: R$ 602.000,00
Localização: Lançamento condomínio fechado Bougainville Residence , 5 minutos da praia do Balneário de Carapebus, Serra/ES, com entrega para 2028.
São casas duplex modernas com 3 quartos, sendo uma suíte, e aquele quintal privativo que você sempre sonhou para o seu lazer. Tudo isso em 85m² de área privativa e vaga de garagem.
A modalidade é crédito associativo, você pode usar seu FGTS na entrada e parcelar o restante direto com a construtora durante a obra.
Balneário Carapebus


Casa 2 Quartos (Suíte) - 83m² em terreno de 187,50m² - Balneário Carapebus, Serra/ES
Cod: PD2-010 Valor: R$ 650.000,00
Localização: Rua Marmeleiro, Balneário de Carapebus, Serra/ES, a 5 minutos da praia e em uma das regiões que mais cresce na Serra.
Casa pronta para morar, com 2 quartos (suíte), 2 banheiros, sala de TV e Jantar, área de serviço, circulação, piso todo em procelanato, 1 vaga de garagem, área gourmet e uma excelente área gramada.
LANÇAMENTO
Vila Velha/ES
Praia de Itaparica


Apartamento 2 Quartos, 79m², Lazer completo, 1 Vaga - Praia de Itaparica - Vila Velha/ES
Cod: PD2-015 Valor: R$ 640.000,00
✨Já pensou em morar a apenas UMA QUADRA da Praia de Itaparica? 🏖️ No Edifício Residencial Lila, você une o conforto de um 2 quartos planejados, com a conveniência de ter supermercados, farmácias e os melhores restaurantes de Vila Velha ao seu redor.
Por que este é o seu próximo imóvel:
✅ Conforto Térmico: Apartamento fresco, sem sol direto.
✅ Integração: Sala e cozinha conectadas para um ambiente moderno.
✅ Lazer Completo: Piscina, sauna e churrasqueira para seus fins de semana.
✅ Localização Premium: Praticidade total em Praia de Itaparica.
Parceria AONI Imóveis


Coqueiral de Itaparica
Projeto de uso misto, com 1 torre residencial e um total de 29 pavimentos, sendo 24 pavimentos residenciais.
Cod: PD2-014 Valor à partir: R$ 728.000,00
Infraestrutura completa e diferenciada, focando no conforto, segurança e bem-estar dos moradores e usuários.
Com lojas comerciais, acesso exclusivo à área residencial, lazer completo e decorado, além de um Hub de inovação e coworking com 803m² integrado ao empreendimento, situado no mezanino do edifício, com acesso controlado e elevador exclusivo, ideal para quem busca integrar particidade, conectividade e produtividade no dia a dia.
24 Pavimentos residenciais, com 5 elevadores, 340 unidades, sendo: 48 Studios c/40,22m², 144 Apto. 1 Quarto c/31,87m² - 48,34m², 48 Apto. 2 Quartos c/62,79m² - 70,39m² e 52 Apto. 3 Quartos c/76,96m². Conta ainda com 11 unidades Gardem Exclusivas - 1º Pavimento tipo (referente ao 6º pavimento)
Pavimento térreo com 13 Lojas c/área total de 560,32m²
Guarapari/ES
Praia do Morro


Apartamento 2 Quartos (suíte) - Mobiliado completo c/todos os utensílios
Cod: PD2-002 Valor: R$ 590.000,00
Localização: Av. Celso Bastos Couto, à 3 quadras da praia, 1º andar, com 2 quartos (suíte), sala, cozinha, banheiro social e uma espaçosa área externa, com acesso pela sala e quartos, fechada com cortina de vidro e coberta com acetato, garantindo privacidade com iluminação natural e muita segurança.
Documentação rigorosamente em dia que garante uma transação segura e descomplicada.


Cariacica/ES
Itacibá
Apartamento 2 Quartos - Residencial Turmalina - Tucum, Cariacica/ES
Cod: PD1-003 Valor à partir de: R$ 245.000,00
Localização: R. São Paulo Apóstolo, 22, perto de tudo que você precisa para uma vida prática e moderna! Você estará ao lado do polo comercial da Rodovia José Sette, próximo ao Shopping Moxuara, supermercados, Terminal de Itacibá e a poucos minutos da Orla de Cariacica. Com acesso fácil pelas Rod. José Henrique Sette e Rodovia do Contorno.
Lazer Completo para a Família! ☀️ Aqui, a diversão e o descanso são garantidos. O Turmalina oferece um lazer que inspira momentos especiais:
Piscinas Adulto e Infantil 🏊
Churrasqueira para celebrar os melhores encontros 🥩
Playground seguro para as crianças 🪁
Pet Place exclusivo para o seu bichinho! 🐾
Alfredo Chaves/ES
Cachoeira Alta


Sítio Cachoeira Alta, 2,3 alqueires (111.320 m²) de área total, Casa Sede de 250m², Alfredo Chaves/ES
Cod: PD4-016 Valor à partir de: R$ 2.500.000,00
Localização: Apenas 6 km de Alfredo Chaves (Terra do Leite e da Banana) e a aproximadamente 600m da Rampa de Voo Livre, com todo o acesso pavimentado e privilegiado.
Casa Sede de 250m², toda avarandada, com 2 Suítes, Salão Integrado com Cozinha e Lavanderia e Lavabo. Quarto de hóspede anexo (20m²).
Lazer Completo para a Família! Piscina, Garagem e Oficina, Espaço Gourmet Independente totalmente equipado com fogão industrial e a lenha, forno, churrasqueira, geladeira, freezer, mesas e utensílios.
Negócio pode ser feito de Porteira Fechada (itens de família negociáveis) e a documentação permite financiamento!
Prédio Comercial, 720m², Exclusivo para Eventos e Gastronomia - Jardim Atlântico - Jacaraipe
Cod: PD4-001 Valor: R$ 1.700.000,00
Localização: Rua Guaracy, Jacaraipe, 4 quadras da praia, com área total de 720m², conta com salão principal totalmente envidraçado, com iluminação natural abundante e vista panorâmica para a área externa gramada. A integração com a natureza cria um ambiente acolhedor e versátil, perfeito para diversas configurações.
Seja para sediar eventos inesquecíveis ou para dar vida ao seu próximo empreendimento gastronômico, este espaço oferece a estrutura e o charme que você precisa.
Lojas, Salas & Prédios
Comério & Indústria
Jacaraipe


Santa Luzia
Serra/ES
10 Lojas com 55,42m² e 1 Loja com 106,42m² - Giardino Florença
Cod: PD2-005 Valor à partir: R$ 550.000,00
Localização: Av. Anchieta, Santa Luzia, Condomínio Giardino Florença, em frente ao Parque da Cidade, com estacionamento, segurança, entregue com piso no contrapiso, banheiro completo e facilidade de pagamento durante a construção.
LANÇAMENTO


Alfredo Chaves/ES


💰 Cod: PD2-012 Valor: R$ 700.000,00
Se você busca o local perfeito para instalar sua clínica, escritório ou restaurante, acaba de encontrar! Este prédio comercial de 2 pavimentos une modernidade, acessibilidade e a melhor localização da cidade.
📍 Localização Imbatível: Em frente à Câmara Municipal e ao lado da Praça Gastronômica Leandro Belmok.
✅ Destaques do Imóvel:
Área Total: 252m² de construção de alto padrão.
Térreo: 2 lojas independentes + depósito nos fundos.
Piso Superior: Amplo salão com recepção e banheiros.
Infraestrutura: Acessibilidade, fosso preparado para elevador de cadeirantes e 3 vagas de garagem.
Ideal para quem não abre mão de segurança e facilidade de estacionamento para seus clientes.
